cambiums

PROJETS

ACTUALITE

AGENCE

CONSTRUIRE

PROJETS

ACTUALITE

AGENCE

CONSTRUIRE

mars 2026

Maison Camboly
Patrimoine rural remarquable traversant paisiblement les siècles, la maison Camboly, avec son escalier à vis, ses imposantes cheminées, ses pièces voûtées dont une ancienne petite chapelle en croisée d’ogives est aujourd’hui inscrite à l’inventaire des Monuments Historiques.
Les nouveaux propriétaires souhaitent transformer certaines pièces pour en améliorer le confort et nous sommes très heureux de pouvoir intervenir sur cette demeure chargée d’histoire.

janvier 2026

Full Metal Staircase
Après un long travail de mise au point de tous les détails techniques avec le serrurier en vue de l’établissement des plans de fabrication destinés à la découpe des plaques d’acier par le ’’laseriste’’ (spécialiste en découpe au laser), les premiers éléments de l’escalier-bibliothèque commencent à se mettre en place.
Les 190 pièces numérotées et référencées de ce Meccano géant en acier brut de laminage à chaud de 6 mm d’épaisseur (poids total 2'700 kg) sont méthodiquement emboitées puis assemblées les unes aux autres par des points de soudure judicieusement placés pour ne pas être vus.
La matérialité de l’acier et la qualité du travail du serrurier nous garantissent d’ores et déjà un résultat à la hauteur de nos espérances.

novembre 2025

Formation diagnostic du bâti ancien
Cambiums participait à 2 journées de formation organisées par Maisons Paysannes de France et consacrées au diagnostic du bâti ancien. Après avoir étudié les comportements et pathologies liés aux différents modes constructifs, nous avons pu mettre en application ces savoirs à travers la lecture de bâtiments traditionnels matheysins caractérisés par leur rez-de-chaussée en voûtes d’arête et où l’Université Rurale Montagnarde nous accueillait très chaleureusement.

septembre 2025

Sous les toits
Entre ciel et terre, nous sommes invités à imaginer de nouveaux espaces à vivre sous le toit protecteur d’une maison familiale de centre bourg.

juillet 2025

S'élever
Un projet d’escalier associé à une bibliothèque doit permettre de desservir les deux niveaux d'un duplex de ce majestueux château du début du XVIIIe siècle, remanié fin XIXe et aujourd’hui divisé en copropriété.
Le métal est le matériau retenu pour créer l’événement.

mai 2025

Transformation d'une maison du centre-bourg de Brignais
Cette construction en pierre et pisé de la deuxième moitié du XIX° siècle était à l’origine une ferme organisée en U autour d’une cour orientée au Sud. Elle a déjà connu plusieurs transformations par le passé et une récente division foncière l’a séparée en deux. Le projet consiste en la réhabilitation de la maison et de sa dépendance en logements.

avril 2025

Rideau
Pour améliorer le confort d’été de cet appartement rénové il y a quelques années, un rideau coulissant est installé à l’extérieur du balcon permettant le contrôle du rayonnement solaire sur les châssis vitrés et une appropriation autre de cet espace intermédiaire ainsi créé. Fermé, il se niche dans la profondeur du balcon grâce à un rail cintré.

octobre 2024

Prix régional de la construction bois
Retrouvez le projet de surélévation d’une maison à Lyon sur l’édition 2024 du catalogue de la Construction Bois Auvergne-Rhône-Alpes.

juillet 2024

Pierre et pisé
Les pierres sont dites « dorées » à cause du calcaire jaune local, le pisé est utilisé intelligemment pour les murs de refend intérieurs, et avec le bois de charpente en chêne, ce sont les trois matériaux qui ont servis à l’édification de cette ancienne ferme de polyculture typique du Beaujolais de la fin du XIX° siècle.
Ce nouveau projet qui touche à la réhabilitation du patrimoine rural agricole vise à la transformation du logement « en hauteur » et des espaces laissés vacants par le transfert de l’activité viticole dans un hangar à l’arrière de la ferme.

juin 2024

Au bord du lac
On s’y baigne l’été, on y patine(ait) l’hiver, on y pêche toute l’année.
Nous sommes très heureux de travailler à la réhabilitation d’une ancienne maison de pêcheur et à la remise en valeur de ce petit patrimoine local. Le projet se situe dans un cadre exceptionnel au cœur du massif jurassien, à plus de 850 mètres d’altitude, au bord du lac Saint Point.

avril 2024

Stage pratique "Enduits de terre"
Cambiums participait à la journée de stage animée par Stéphane Piccini de L’atelier de la chaux permettant de mettre en pratique les différentes étapes pour réaliser des enduits à base de terre (et chanvre / plâtre / chaux / ciment prompt / ouate de cellulose) à travers leur formulation et leur application sur les murs de son atelier école dans le Beaujolais.

avril 2024

Conférence "Le confort d'été dans le bâti ancien"
Dans le cadre de l’assemblée générale de Maisons Paysannes du Rhône, nous avons été invités à présenter une conférence sur le thème de plus en plus brulant du confort d’été.
Entre autres sujets, le principe d’inertie et de déphasage thermique a pu être expliqué démontrant ainsi les avantages du bâti ancien pour répondre à cette problématique.

janvier 2024

10 ans !
Pour son anniversaire, la communication visuelle de cambiums mue avec un tout nouveau site internet plus convivial et ’’responsive’’.
A vos tablettes et smartphones !

juin 2023

Projet de bâtiment agricole à Irigny
Réunion de travail in situ avec l’ergonome et sa maquette au 1/24° (échelle Playmobil) pour vérifier l’organisation intérieure des espaces arrêtée en programme et développée en esquisse.
Le plan très rationnel s’organise en L sur 6 travées parallèles aux fonctions différentes dont la variation de profondeur permet de dégager une ’’cour de ferme’’ caractéristique de l’activité.

Avec ce projet, nous retrouvons les thèmes et problématiques liés à l’architecture agricole à laquelle nous sommes très sensibles et que nous avons commencé de développer dans le travail personnel de fin d’études ’’pays, paysages, paysans…’’ que vous pouvez retrouver ici.

avril 2023

Formations bâti ancien, réhabilitation énergétique et biosourcés
Avec ces 4 dernières formations, cambiums approfondi ses connaissances sur les sujets du bâti ancien, de sa rénovation, notamment énergétique et des matériaux biosourcés.
Concevoir une réhabilitation énergétique responsable du bâti ancien : formation développée par le CEREMA et le CREBA / Centre de ressources pour la réhabilitation responsable du bâti ancien.
Construire en fibres végétales aujourd’hui : formation organisée par amàco, centre de formation, de recherche et d’expertise sur la construction en terre crue et en fibres végétales.
Réhabilitation énergétique performante : formation développée par Samuel Courgey, expert en "bâtiment et Environnement", Arcanne.
Connaissances et amélioration sur le thermique du bâti ancien : formation dispensée par Bernard Leborne, expert régional Maisons Paysannes de France.

janvier 2023

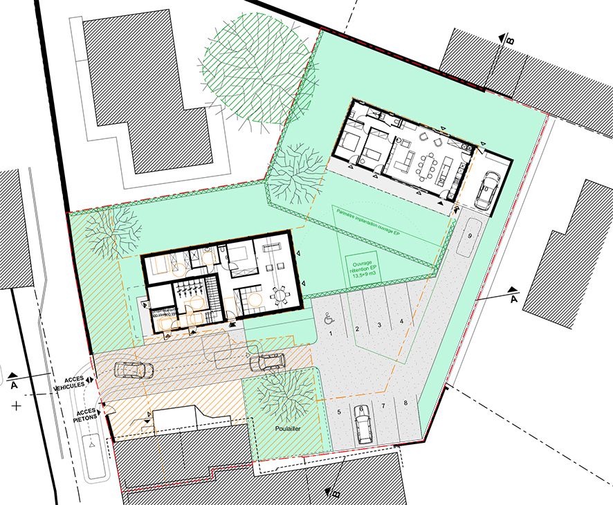
2 projets pour 1 terrain
Une maison individuelle et un petit immeuble de logements collectifs sont à l’étude pour prendre place sur une parcelle au centre d’Irigny (69).
La maison de plain-pied s’implante en fond de parcelle, en cœur d’îlot, pour profiter d’une certaine tranquillité et de l’orientation Sud ; le collectif occupe quant à lui le front de rue dans un contexte plus urbain ; un bâtiment existant en limite Sud actuellement destiné à la location doit être conservé dans un premier temps ; des espaces partagés végétalisés et arborés agrémentent et articulent l’ensemble.
Les bâtiments neufs seront construits en bois et les isolations en matériaux biosourcés (paille et laine de bois).
Pour cette nouvelle opération Cambiums est à nouveau associé à Archispot.

décembre 2022

La rotonde et l’ombrelle
A l’angle de Berthelot et Miribel,
Tout le monde la trouvait très belle,
Elle faisait lever la tête des passants,
Il faut dire qu’elle en a vu défiler un siècle durant.
Mais du haut de sa solitude,
La rotonde prise de lassitude,
Vira aux teintes monotones,
A en ternir sa coupole.
Devant une telle mésaventure,
Ses propriétaires conclurent,
Sans lui porter ombrage,
Et pour profiter de leur ouvrage,
Qu’une ombrelle à l’allure légère,
Serait construite pour la distraire.

octobre 2022

GAEC des Presles
Un projet de bâtiment agricole pour des producteurs de légumes en périphérie de Lyon est actuellement à l’étude. Le programme comprend un laboratoire de transformation, du stockage et une boutique de vente.
Le terrain bénéficie d’une vue privilégiée sur la ville, il accueillera également un verger, une serre, des espaces pédagogiques et une maison d’habitation en construction bois et paille devra s’intégrer dans cet ensemble paysager.
Pour cette opération, Cambiums est associé à Archispot.

Contact   |   Mentions légales

© Cambiums 2026